En el texto anterior conocimos la importancia del trabajo de todos los agentes de infraestructuras en un ferrocarril, y la primera distribución de sus grupos a lo largo de la línea, con sus edificios de refugio y almacén correspondientes. Toca ahora avanzar en el tiempo y conocer otros edificios aparecidos con la misma función, y las nuevas formas de trabajo de estos profesionales.
Vías y obras en el P.V. tras las variantes de los embalses
Las consecutivas aperturas a la circulación de las variantes ferroviarias a causa de la construcción de los embalses de Bárcena (1960) y Las Rozas (1964) determinaron una reorganización en el reparto de los tramos de trabajo. Quedaron varios kilómetros de vía sumergidos que ya no había que mantener, y otros de reciente construcción con unas características que no hacían necesario un trabajo tan intenso, al menos en los primeros años.
|
Brigada |
Tramo (P.K.) |
Agentes |
Residencia |
|
1 |
0 a 3 |
29 |
Ponferrada |
|
2 |
3 a 9 |
8 |
San Andrés |
|
3 |
9 a 14 |
5 |
Cubillos |
|
4 |
14 a 22 |
4 |
Pradilla |
|
5 |
22 a 28 |
2 |
Toreno |
|
6 |
28 a 34 |
5 |
Matarrosa |
|
7 |
34 a 40 |
3 |
Sta. Cruz |
|
8 |
40 a 46 |
2 |
Corbón |
|
9 |
46 a 52 |
6 |
Palacios |
|
10 |
52 a 58 |
2 |
Cuevas |
|
11 |
58 a 64 |
9 |
Villarino |
|
Villablino y ramales |
- |
18 |
Villablino |
|
Volante |
- |
12 |
Ponferrada |
|
Mixta |
- |
¿? |
Ponferrada |
Seis nuevas casillas se construyeron en la variante de Bárcena, a las que nos referiremos más adelante, así como otras dos entre Corbón y Palacios, denominadas Río Campo y Río Matalavilla, por ausencia de estación o población cercana que les diera más preciso nombre, y una más aguas arriba de Palacios del Sil, denominada “Balastera”. El ramal de Villaseca contó con una pequeña casilla en su kilómetro 3/900.
Los últimos tiempos de las Brigadas
Con la mecanización de los trabajos y el inicio de las renovaciones profundas de la vía en los años setenta, se comenzaron a amortizar las plazas de la sección de conservación de vía con la jubilación de sus efectivos. Se fueron cerrando las secciones, quedando como última la de Palacios del Sil, con 4 agentes, mientras que la conservación del resto de la línea la iban asumiendo las brigadas de 15 agentes de Ponferrada, la de 12 de Villablino y la Brigada Volante de 20 agentes, con datos de 1975.
Los edificios de la variante de BárcenaTres túneles, dos grandes viaductos y dos apeaderos de estilo racionalista son las obras más visibles de la variante ferroviaria por la construcción del embalse de Bárcena, pero también se construyeron seis pequeños edificios, con función similar a las antiguas casillas de brigada de vía y obras. Se localizan en pleno trayecto entre estaciones con los nombres de Bárcena y Cabañinas, en las cercanías de la estación de Cubillos del Sil, los apeaderos de Pradilla y Santa Marina del Sil, y el antiguo cargadero de Nicolás G. Durana, que era también punto de unión de los trazados original y de la variante en la cola del embalse, y recibió el nombre del cercano Río Velasco.
|
Caseta |
P.K. 1961-1997 |
P.K. 1997-actualidad |
Estado |
|
Bárcena |
9/000 |
- |
Muros |
|
Cabañinas |
12/100 |
- |
Desaparecido |
|
Cubillos del Sil |
14/800 |
0/690 |
Muros |
|
Pradilla |
17/900 |
3/790 |
Muros |
|
Sta. Marina |
20/100 |
5/990 |
Desaparecido |
|
Río Velasco |
22/500 |
8/390 |
Muros |
Estado actual de los edificios supervivientes
Edificios originales
Son originales las casillas 3 a 13, pues las dos primeras y la decimocuarta no existen como tal, estando sus dependencias en el conjunto de edificios de las estaciones de Ponferrada y Villablino, como ya hemos dicho. De las 11 restantes, las cuatro primeras han desaparecido con motivo de la variante del embalse de Bárcena. El resto, a excepción de Palacios que fue derruida, se conservan en muy mal estado, estando las de Toreno y Santa Cruz algo más completas. En las próximas imágenes mostramos su estado actual.
Santa Marina del Sil
| Imagen actual de la misma zona, destacando en un círculo rojo las ruinas de la casilla. |
Toreno
Matarrosa
Sta. Cruz del Sil
![]() |
| Santa Cruz, del que mostramos su interior en el artículo anterior, sobrevive con la cubierta en inminente desprendimiento, así como las cada vez menos letras de su cartel "Brigada". |
| El edificio de Corbón está hoy día totalmente destruído, y por ello mostramos una foto de hace unos años, de David Zamorano, cuando todavía se mantenía en pie. |
![]() |
| Y este es el estado actual, en mayo de 2021, consumido por la vegetación circundante. |
Palacios del Sil
Cuevas del Sil
![]() |
| Aunque la fotografía que mostramos de la caseta de Cuevas del Sil fue tomada en el año 2000, este edificio se conserva solo un poco más deteriorado que como lo vemos en esta imagen. |
Villarino
![]() | |||
| David Zamorano obtuvo esta imagen de la caseta de Villarino, completamente en ruinas. En similar estado se encuentra en la actualidad el de Corbón del Sil. | |
Ramal de Villaseca
![]() |
| Entre Rioscuro y Villaseca, caseta de vía y obras perteneciente al ramal de Villaseca de Laciana. Fotografía de David Zamorano. |
Edificios en variante de Bárcena
Se conservan 5 de las seis casetas, pues la de las cercanías de Santa Marina, al pie del segundo viaducto de la variante, también fue derruida. Las tres supervivientes se encuentran con sus muros completos, con la cubierta en muy mal estado y la visera inexistente.
Bárcena (P.K. 9/000 actual)
Cabañinas (P.K. 12/100 actual)
![]() |
| La tolva tipo PK nos tapa el edificio de las cercanías de Cabañinas. Esta imagen ya se mostró en el blog al hablar de este tipo de tolvas. Lamentablemente no conservamos imágenes de esta caseta en mejor ángulo, puesto que en esta ubicación tuvo lugar el desguace masivo de las tolvas de tipo antiguo que se adivinan al final de la foto, y con ellas se destruyeron los restos del edificio. También se levantó la vía hasta Cubillos y solo permanece la topera de hormigón, como mazacote inservible tirado en medio del campo. |
Cubillos del Sil (P.K. 14/800 antiguo, 0/690 actual)
![]() |
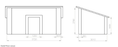
| A la salida de Cubillos del Sil encontramos la tercera de las casillas, que por su mejor acceso, fue la escogida para tomar las medidas del plano que acompaña a este texto. |
![]() |
| La última de las casetas de la variante, a pocos metros de la unión con el trazado original, se denomina Río Velasco, por el cauce que ambos trazados acaban de sortear mediante sendos pontones. |
Fuera de los dos grupos anteriores, se encuentran las casillas de Río Campo, Río Matalavilla y “Balastera”, y la única casilla del ramal de Villaseca.
Río Campo
Río Matalavilla
![]() |
| Con la caseta "Río Matalavilla" no hemos tenido tanta suerte, y como en el caso de Santa Marina, hemos tenido que recurrir a una nueva captura de pantalla de un vídeo en cabina. |
De nuevo, agradecimiento y mención expresa a Honorino y David Zamorano, como con todos los que colaboran en difundir los secretos de este ferrocarril centenario.
Mapa Google Maps
En naranja y reunidos en la misma capa, las ubicaciones con fotografía de las casillas de estos dos artículos, insertadas en el mapa general de la línea ferroviaria que poco a poco vamos completando.




















No hay comentarios:
Publicar un comentario